成約済み物件

ダイアパレス御苑前 202号室

【 マンション 】「新宿御苑前」駅徒歩6分のリノベーション物件

最寄駅所在地面積築年月間取り

東京メトロ丸の内線「新宿御苑前」駅 徒歩 6分

東京都新宿区四谷4-25-10

専有面積/51.11㎡

1983年06月 2 LDK

☆新宿駅まで徒歩圏の好立地!

☆アフターサービス保証付!

☆外壁タイル貼り!

物件写真・間取り

外観
エントランス
キッチン
洗面室
浴室
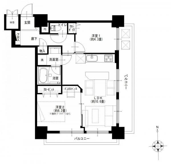
間取り図

物件概要

物件名

ダイアパレス御苑前 202号室

交通機関

東京メトロ丸の内線「新宿御苑前」駅 徒歩 6分

JR山手線、その他「新宿」駅 徒歩 19分

所在地

東京都新宿区四谷4-25-10

間取り 2 LDK
間取り詳細

LDK、洋室1、洋室2

土地権利 所有権
専有面積

51.11㎡

建物構造 SRC
階 / 階数

11階建2階部分

築年月

1983年06月

都市計画 市街化区域
用途地域 商業地域
駐車場
その他制限

ペット飼育不可

地目 宅地
現況
管理費

16830円

修繕積立金

10100円

引渡し 即時
設備エレベーター、リノベーション済、アフターサービス保証付
備考リノベーション内容(令和2年10月完了)
●システムキッチン交換●ユニットバス交換●洗面台交換●トイレ交換●給湯器交換
●全室クロス貼替●全室フローリング張替●全建具交換●フロアタイル張替●下足入れ交換
●洗濯用水栓器具交換●防水パン交換●スイッチパネル交換●スポットライト設置
●ダウンライト設置●照明器具交換●玄関人感センサー設置●ライティングレール設置
取引態様 媒介
情報登録日2020年10月26日
情報更新日2020年10月26日

物件地図人型アイコンを地図上にドラッグするとストリートビューで表示されます。

ダイアパレス御苑前 202号室

東京都新宿区四谷4-25-10

地図を戻す

資料請求・お問い合わせ

物件名ダイアパレス御苑前 202号室
お問い合わせ内容
お名前
電話番号
メールアドレス
確認のため同じアドレスをご入力ください。
備考欄ご希望の連絡方法、見学希望日、希望条件、質問などがございましたら、ご記入ください
  • 光触媒コーティング
  • 住宅ローンシミュレーション
会社概要

合同会社キャレオ・
スターランド

東京都新宿区四谷2-12-1-804

TEL 03-6457-8441

FAX 03-6457-8442

MAIL

営業時間 10:00~19:00
定休日 日曜日

宅建免許番号:東京都知事(2)第100452号

不動産売買・賃貸仲介をメインに行っています。初めての方でもお気軽にご連絡下さい。