成約済み物件
ライオンズマンション西早稲田 802号室
【 マンション 】「早稲田」駅徒歩10分のリノベーション物件
| 最寄駅 | 所在地 | 面積 | 築年月 | 間取り |
|---|---|---|---|---|
東京メトロ副都心線「西早稲田」駅 徒歩 10分 | 東京都新宿区西早稲田3-17-26 | 専有面積/52.73㎡ | 1982年11月 | 2 LDK |
東南角部屋!陽当たり・眺望良好!
2面バルコニー!4駅5路線利用可能!
物件写真・間取り
物件概要
| 物件名 | ライオンズマンション西早稲田 802号室 |
|---|
| 交通機関 | 東京メトロ副都心線「西早稲田」駅 徒歩 10分 東京メトロ東西線「高田馬場」駅 徒歩 12分 東京メトロ東西線「早稲田」駅 徒歩 15分 |
|---|
| 所在地 | 東京都新宿区西早稲田3-17-26 |
|---|
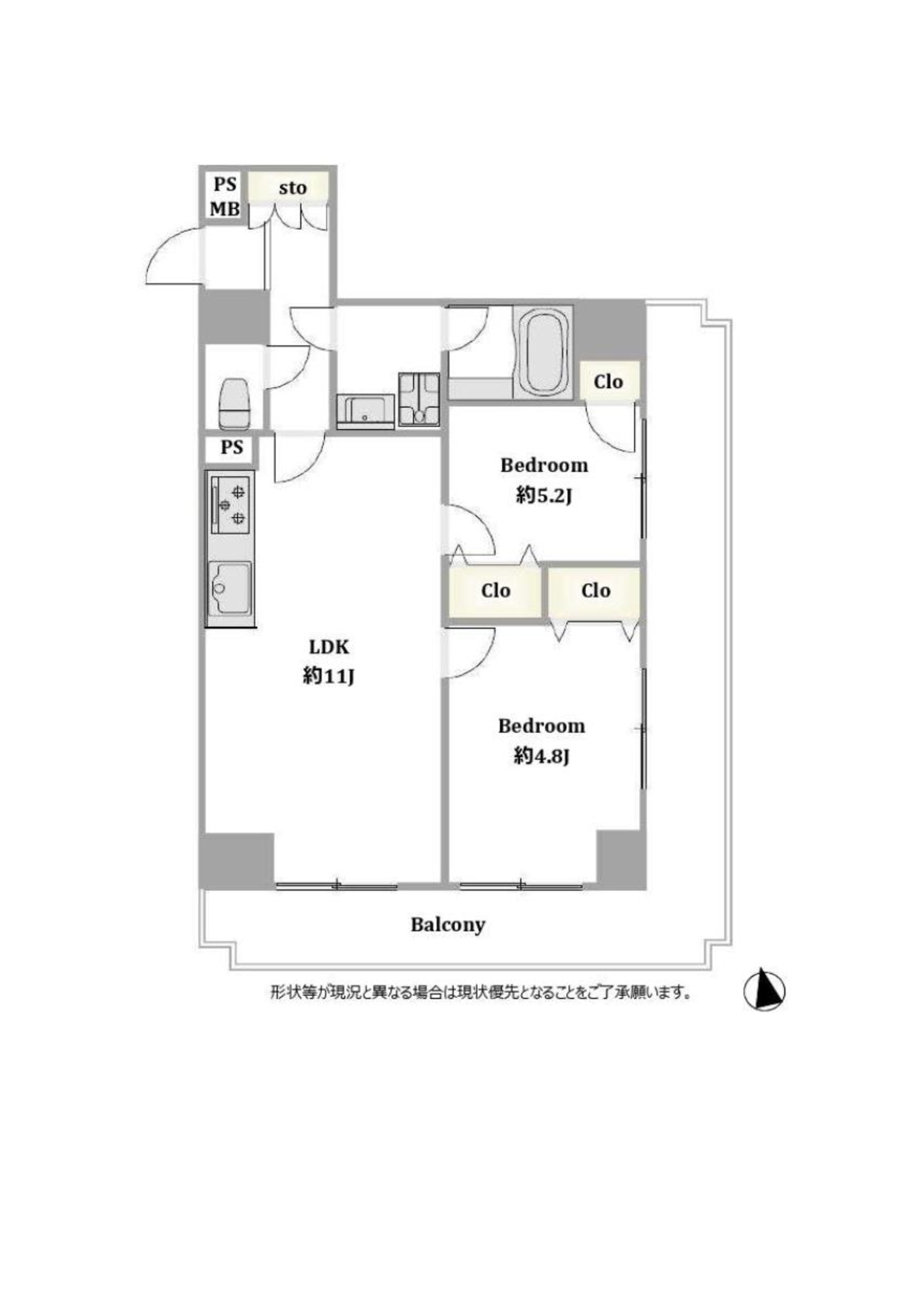
| 間取り | 2 LDK |
|---|
| 間取り詳細 | LDK、洋室×2 |
|---|
| 土地権利 | 所有権 |
|---|
| 専有面積 | 52.73㎡ |
|---|
| 建物構造 | SRC |
|---|
| 階 / 階数 | 10階建8階部分 |
|---|
| 築年月 | 1982年11月 |
|---|
| 都市計画 | 市街化区域 |
|---|
| 用途地域 | 商業地域 |
|---|
| 駐車場 | 無 |
|---|
| その他制限 | 司法書士は売主指定となります。ペット飼育不可 |
|---|
| 地目 | 宅地 |
|---|
| 現況 | 空 |
|---|
| 管理費 | 14200円 |
|---|
| 修繕積立金 | 15980円 |
|---|
| 引渡し | 即時 |
|---|
| 設備 | エレベーター、リノベーション済 |
|---|
| 備考 | リノベーション内容 ●レンジフード交換●キッチン水栓交換●クロス貼替●トイレ交換●フローリングリペア ●照明器具取付●エアコン1台取付●ハウスクリーニング 【平成24年7月フルリフォーム済】 ●システムキッチン交換●ユニットバス交換●洗面台交換●全室フローリング貼替●建具交換 |
|---|
| 取引態様 | 媒介 |
|---|
| 情報登録日 | 2019年10月15日 |
|---|
| 情報更新日 | 2019年10月15日 |
|---|




