売買物件
				初台中央マンション 1104号室
【 マンション 】渋谷区本町のリノベーション物件
| 最寄駅 | 所在地 | 面積 | 築年月 | 価格 | 間取り | 
|---|---|---|---|---|---|
京王線「初台」駅 徒歩 10分  | 東京都渋谷区本町3-52-5 | 専有面積/50.90㎡  | 1971年02月 | 4,590 万円 | 2 LDK | 
☆陽当り・眺望良好!
☆リノベーション済み!
☆アフターサービス保証付!
物件写真・間取り
物件概要
| 物件名 | 初台中央マンション 1104号室  | 
|---|
| 交通機関 | 京王線「初台」駅 徒歩 10分 都営大江戸線「西新宿五丁目」駅 徒歩 5分  | 
|---|
| 所在地 | 東京都渋谷区本町3-52-5  | 
|---|
| 価格 | 4,590 万円  | 
|---|
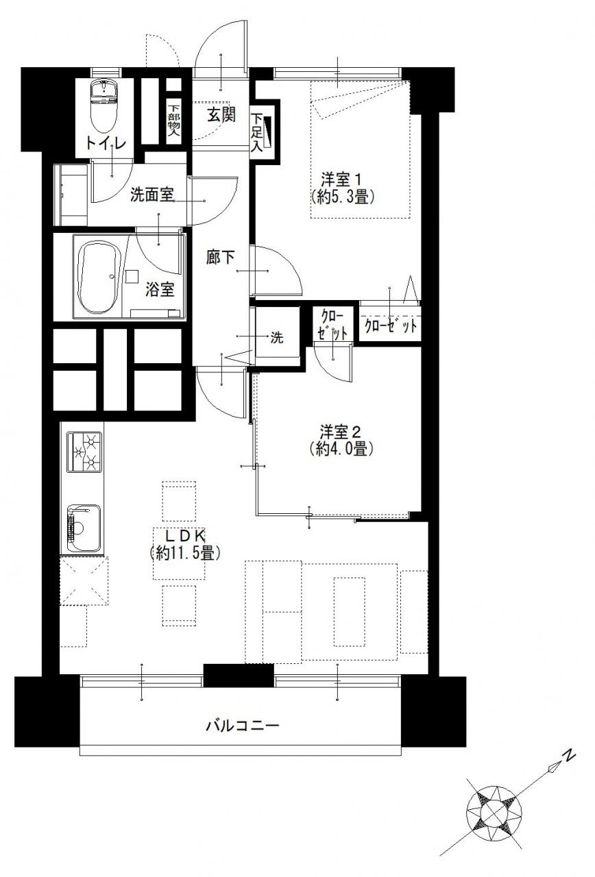
| 間取り | 2 LDK | 
|---|
| 間取り詳細 | LDK約11.5帖、洋室1約5.3帖、洋室2約4.0帖  | 
|---|
| 土地権利 | 所有権 | 
|---|
| 専有面積 | 50.90㎡  | 
|---|
| 私道負担面積 | 無し | 
|---|
| 建物構造 | SRC | 
|---|
| 階 / 階数 | 地上13階建11階部分  | 
|---|
| 築年月 | 1971年02月  | 
|---|
| 都市計画 | 市街化区域 | 
|---|
| 用途地域 | 商業地域 | 
|---|
| 駐車場 | 無 | 
|---|
| その他制限 | 事務所使用不可、ペット飼育不可  | 
|---|
| 地目 | 宅地 | 
|---|
| 現況 | 空 | 
|---|
| 販売戸数 | 1  | 
|---|
| 管理費 | 13000円  | 
|---|
| 修繕積立金 | 9300円  | 
|---|
| 引渡し | 相談 | 
|---|
| 設備 | エレベーター、駐輪場、トランクルーム | 
|---|
| 備考 | リノベーション内容 ・給湯器交換・システムキッチン交換・ユニットバス交換・洗面台交換・トイレ交換 ・全室クロス貼替・全フローリング張替・全建具交換・CF貼替・下足入れ交換 ・洗濯水栓器具交換・防水パン交換・スイッチパネル交換・ダウンライト交換 ・照明器具設置・インターフォン交換・玄関人感センサー設置  | 
|---|
| 取引態様 | 媒介 | 
|---|
| 情報登録日 | 2022年01月15日 | 
|---|
| 情報更新日 | 2022年01月15日 | 
|---|







