売買物件
グリーンヒル新宿 204号室
【 マンション 】東新宿駅徒歩5分の大規模マンション!
| 最寄駅 | 所在地 | 面積 | 築年月 | 価格 | 間取り |
|---|---|---|---|---|---|
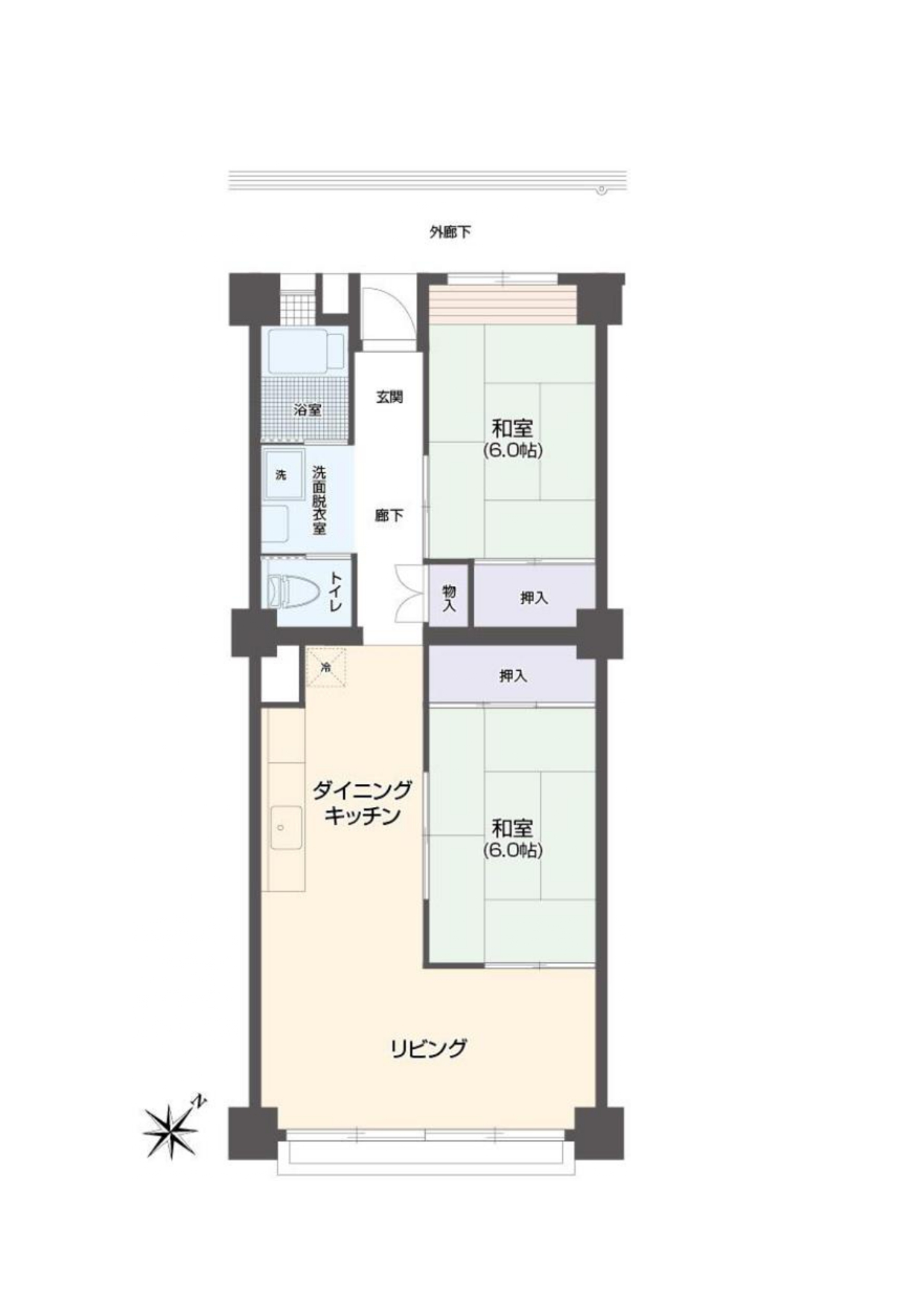
東京メトロ副都心線・都営大江戸線「東新宿」駅 徒歩 5分 | 東京都新宿区新宿7-26-53 | 専有面積/60.00㎡ | 1969年05月 | 3,880 万円 | 2 LDK |
☆南東向き、陽当たり、通風良好!
☆管理体制良好!
☆現況有姿物件です!
物件写真・間取り
物件概要
| 物件名 | グリーンヒル新宿 204号室 |
|---|
| 交通機関 | 東京メトロ副都心線・都営大江戸線「東新宿」駅 徒歩 5分 JR山手線「新大久保」駅 徒歩 13分 |
|---|
| 所在地 | 東京都新宿区新宿7-26-53 |
|---|
| 価格 | 3,880 万円 |
|---|
| 間取り | 2 LDK |
|---|
| 土地権利 | 所有権 |
|---|
| 専有面積 | 60.00㎡ |
|---|
| 建物構造 | SRC |
|---|
| 階 / 階数 | 12階建2階部分 |
|---|
| 築年月 | 1969年05月 |
|---|
| 都市計画 | 市街化区域 |
|---|
| その他制限 | 事務所使用可、ペット飼育不可、司法書士は売主指定 |
|---|
| 地目 | 宅地 |
|---|
| 現況 | 空 |
|---|
| 管理費 | 13000円 |
|---|
| 修繕積立金 | 14000円 |
|---|
| 引渡し | 即時 |
|---|
| 設備 | エレベーター有 |
|---|
| 備考 | 現況有姿での販売です。 |
|---|
| 取引態様 | 媒介 |
|---|
| 情報登録日 | 2022年02月16日 |
|---|
| 情報更新日 | 2022年02月16日 |
|---|





