成約済み物件
グリーンヒル新宿 202号室
【 マンション 】「東新宿」駅徒歩5分のリノベーション物件!
| 最寄駅 | 所在地 | 面積 | 築年月 | 間取り |
|---|---|---|---|---|
東京メトロ副都心線「東新宿」駅 徒歩 5分 | 東京都新宿区新宿7-26-53 | 専有面積/60.00㎡ 土地/3859.54㎡ | 1969年05月 | 3 LDK |
南東角部屋!陽当たり・眺望良好!3路線2駅利用可!
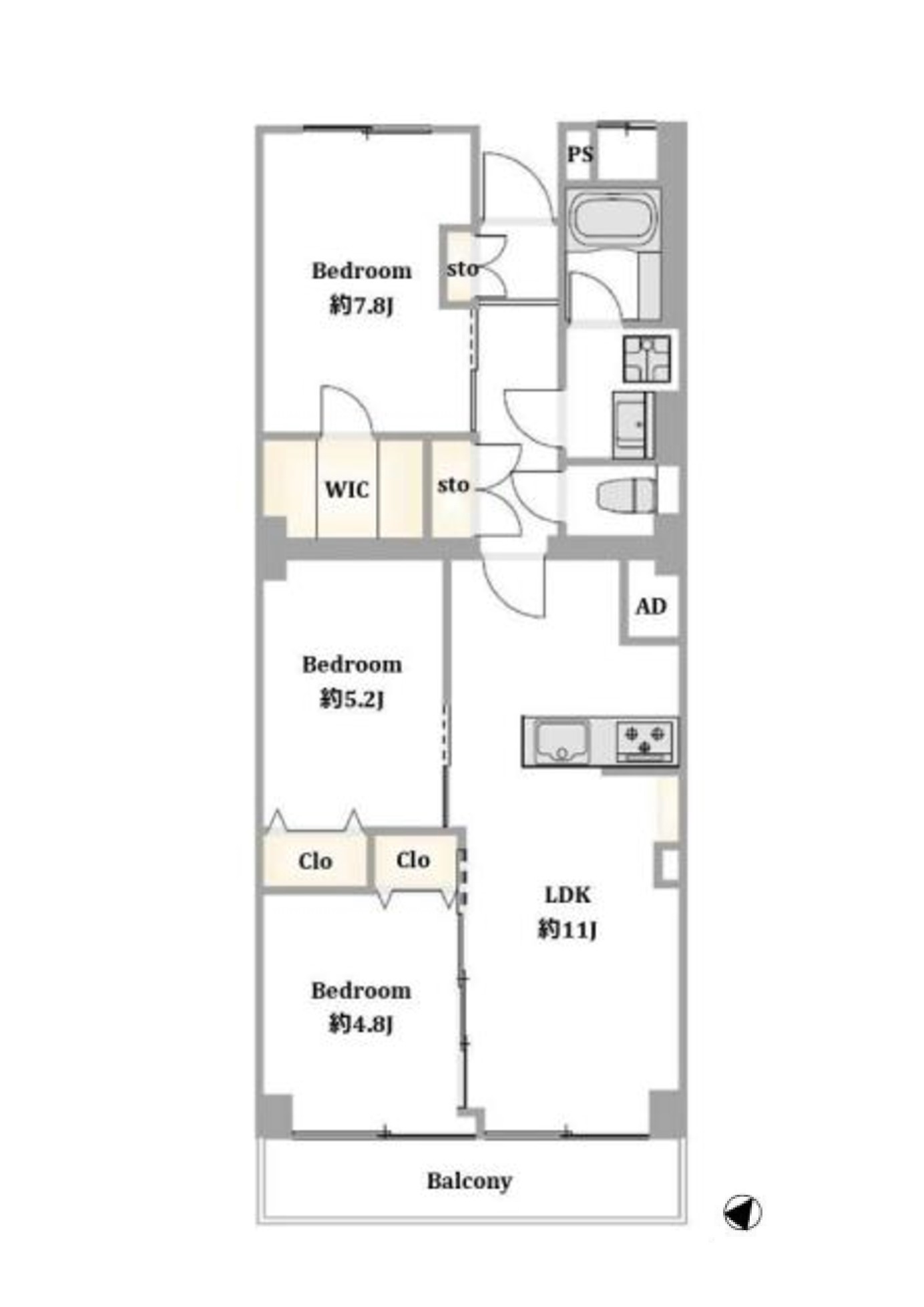
物件写真・間取り
物件概要
| 物件名 | グリーンヒル新宿 202号室 |
|---|
| 交通機関 | 東京メトロ副都心線「東新宿」駅 徒歩 5分 都営大江戸線「東新宿」駅 徒歩 5分 JR山手線「新大久保」駅 徒歩 12分 |
|---|
| 所在地 | 東京都新宿区新宿7-26-53 |
|---|
| 間取り | 3 LDK |
|---|
| 間取り詳細 | LDK、洋室×3 |
|---|
| 土地権利 | 所有権 |
|---|
| 専有面積 | 60.00㎡ |
|---|
| 土地面積 | 3859.54㎡ |
|---|
| 建物構造 | SRC |
|---|
| 階 / 階数 | 12階建2階部分 |
|---|
| 築年月 | 1969年05月 |
|---|
| 都市計画 | 市街化区域 |
|---|
| 用途地域 | 第一種住居地域 |
|---|
| 駐車場 | 空有 月額20,000円~22,000円 |
|---|
| その他制限 | 司法書士は売主指定、ペット飼育不可 |
|---|
| 地目 | 宅地 |
|---|
| 現況 | 空 |
|---|
| 管理費 | 13000円 |
|---|
| 修繕積立金 | 7000円 |
|---|
| 引渡し | 即時 |
|---|
| 設備 | エレベーター、リノベーション済、アフターサービス保証付 |
|---|
| 備考 | リノベーション内容 ●クロス貼替●フローリング貼替●フロアタイル貼替●建具・クローゼット交換 ●システムキッチン交換(浄水器付)●ユニットバス交換(浴室換気乾燥機能付) ●給湯器交換(追焚機能付)●洗面化粧台交換●トイレ交換●照明器具設置●エアコン1台取付 |
|---|
| 取引態様 | 媒介 |
|---|
| 情報登録日 | 2019年07月08日 |
|---|
| 情報更新日 | 2019年07月08日 |
|---|





