マイキャッスル目白 201号室
【
            マンション
          
          】新規内装リノベーション!最新の内装設備に変わりました!
| 最寄駅 | 所在地 | 面積 | 築年月 | 間取り | 
|---|
東京メトロ副都心線「雑司が谷」駅
                  徒歩
                6分
                  | 東京都豊島区高田2-5-4 | 専有面積/50.14㎡   | 1993年06月
             | 
                2
              
                LDK
               | 
☆南向き角部屋!☆陽当たり・通風良好!
☆3駅5路線利用可!☆管理体制良好!
物件写真・間取り
物件概要
| 交通機関 | 東京メトロ副都心線「雑司が谷」駅
                    徒歩
                  6分
                   JR山手線・東京メトロ東西線「高田馬場」駅
                    徒歩
                  12分
                   都電荒川線「面影橋」駅
                    徒歩
                  3分
                    | 
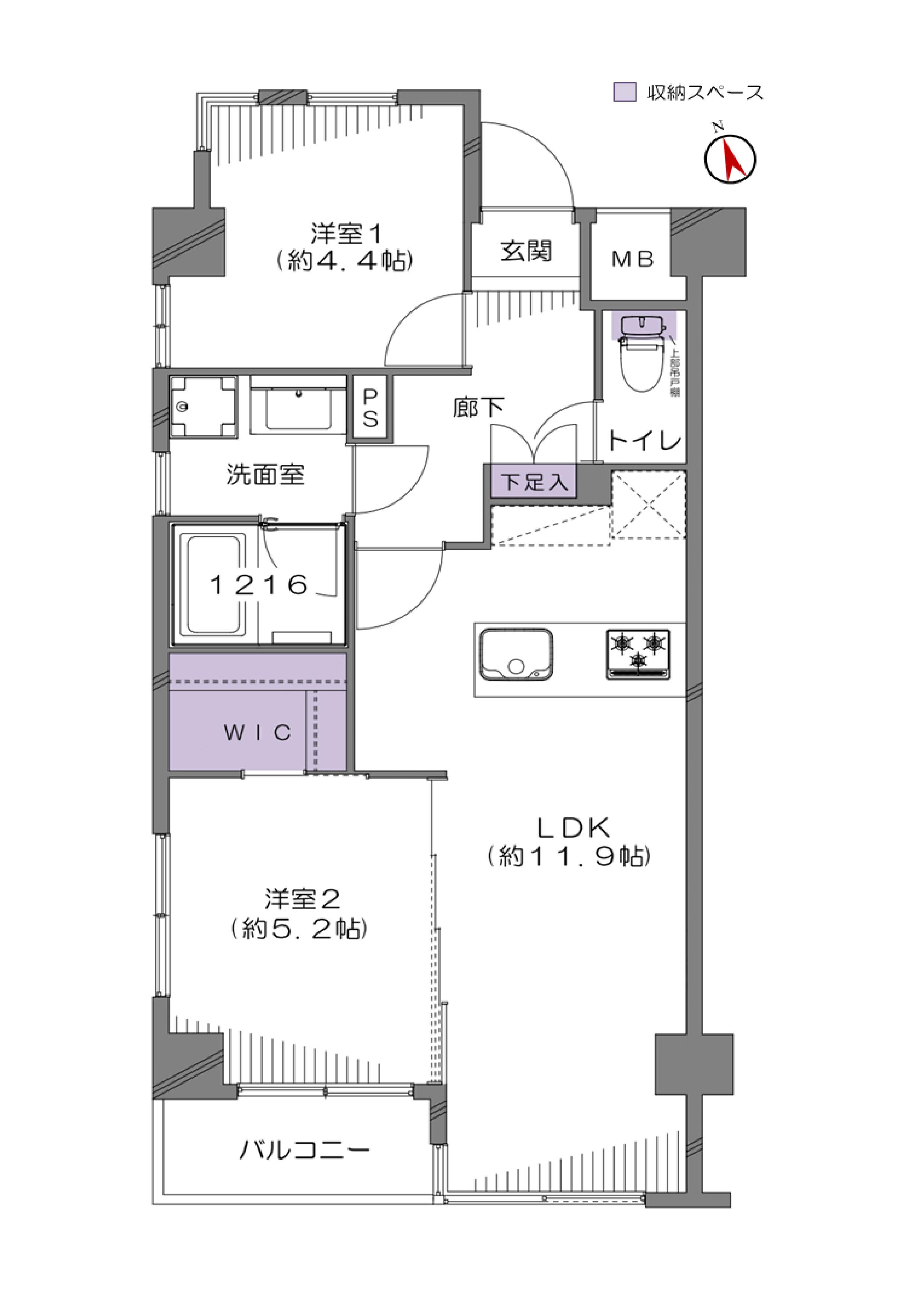
| 間取り詳細 | LDK約11.9帖、洋室約5.2帖、洋室約4.4帖、WIC  | 
|---|
| その他制限 | フラット35適合物件、司法書士は売主指定、駐車場なし  | 
|---|
| 設備 | エレベーター、オートロック、アフターサービス保証付、事務所使用不可、ペット飼育不可 | 
|---|
| 備考 | リノベーション内容 
●LIXIL製システムキッチン(ビルトイン食洗機/浄水器付水栓/ガラストップコンロ) 
●LIXIL製ユニットバス(1216/浴室換気暖房乾燥機/追焚機能) 
●LIXIL製洗面化粧台●LIXIL製一体型シャワートイレ●フローリング張替●建具交換 
●壁・天井クロス貼替●給湯器交換(追焚機能)●LED照明器具取付●玄関収納新規交換 
●給水・給湯管交換(専有部)●防水パン交換●エアコン基設置●ハウスクリーニング | 
|---|
物件地図人型アイコンを地図上にドラッグするとストリートビューで表示されます。
マイキャッスル目白 201号室
東京都豊島区高田2-5-4
地図を戻す